YACHT SUPPORT VESSEL
18M 10 TONNES

Cette vedette en Aluminium de 18m de long et 4.70m de large est un Yacht Support Vessel. Elle est homologuée aux normes CE catégorie B pour 12 personnes. La superstructure abrite un salon, une cuisine, 2 salles de bain et un poste de repos.
Sa capacité de chargement de 10 tonnes permet d’embarquer de nombreux toys. Ses fonctions de sécurité avancées, aux meilleurs standards des bateaux professionnels et sa grande autonomie en font également un excellent bateau d’expédition.
PROGRAMME DU NAVIRE
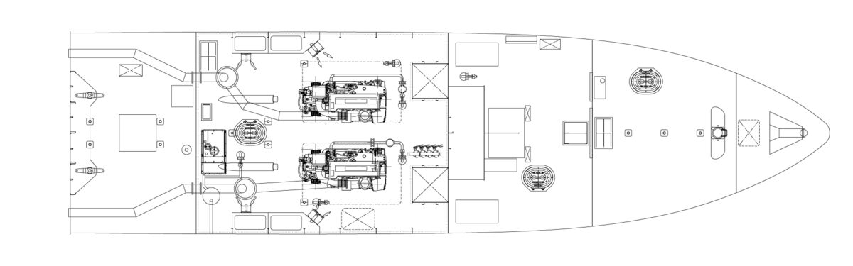
Monocoque semi planant de type "Yacht Support Vessel"
SPECIFICATIONS
- Constructeur
- ODC Marine
- Architecte Naval
- Mer et Design
- Matériaux de construction
- Aluminium Marine
HOMOLOGATION
Navire de plaisance homologation CE catégorie B
CARACTERISTIQUES PRINCIPALES
- Exploitation
- 2000 h/an
- Type de coque
- Monocoque
- Longueur hors-tout
- 19.40m
- Longueur coque
- 18.00m
- Longueur flottaison
- 16.90m
- Bau
- 4.70m
- Creux
- 1.90m
- Tirant d’eau en charge
- 1.25m
- Equipage / guests
- 12
- Capacité « toys » et équipements
- 10 tonnes
- Capacité eau douce
- 150 L
- Capacité eau noire
- 150 L
FONCTION PROPULSION
Diesel
- Type de propulsion
- Inboard Diesel
- Puissance Max.
- 2* Cummins QSL9 450 Ch @2100 rpm
- Réducteurs
- 2* ZF325-A
- Capacité gasoil
- 2* 1000 L
- Vitesse Max.
- approx. 20 nœuds
- Ventilation machine
- Injection 2* 4000 m³/h + extraction 2* 2400 m³/h
- Ligne d’arbre, tourteaux, hélices
- ZF
FONCTION DIRECTION
- Vérin et pompe hydraulique
- LS
- Capteur et indicateur d’angle de barre
- By-pass hydraulique et barre de secours
AMENAGEMENT ET EQUIPEMENTS DE CONFORT
- Traitement acoustique et vibratoire
- Vaigrages et finitions nid d’abeille aluminium plafond timonerie et cabine
- Vitres et fenêtres en timonerie et cabines
- Système audio Fusion
- Assise pilote
- Eclairage LED
- Poste de repos pour 4 personnes
- 2 toilettes / douches
- Cuisine et carré équipage
TRAITEMENT DE SURFACE
- Œuvres mortes : Cycle peinture phase aqueuse Mader à faible impact environnemental et finition enduit époxy
- Œuvres vives : Cycle antifouling International Trilux 33
EQUIPEMENTS DE NAVIGATION
- Centrale NSS9 evo2 GPS Simrad + Antenne GPS externe
- Radar Simrad Halo 20
- 2 VHF Simrad RS20S
- 1 VHF portable GMDSS
- Transpondeur SART Ocean Signal
- Compas Lalizas
- Balise EPIRB Ocean Signal
ACCOSTAGE & MOUILLAGE
- Guindeau électrique Quick
- 3000 W
- Mouillage réglementaire
- Ancre à haute pouvoir de tenue Rocna
SOURCES D'ENERGIE ELECTRIQUE ET DISTRIBUTION
- 2 packs batteries démarrage Optima
- 24V 75 Amp
- 1 pack batteries guindeau Optima
- 24V 75 Amp
- 1 pack batteries service
- 24V 200 Amp
- 1 pack batteries secours
- 24V 150 Amp
- 1 pack batteries secours radio
- 12V 110 Amp
- 2 chargeurs de batteries
- 24V 30 Amp
SECURITE SIGNALEMENT
- Centrale Marinelec supervision des feux de navigation
- Eclairages réglementaires
SECURITE INCENDIE
- Centrale Marinelec détection incendie
- Isolation salle machine vaigrage laine de roche Saint-Gobain
- Système d’extinction Novec
- Pompe attelée incendie sur un moteur + lance + diffuseur
- Motopompe diesel secours incendie sur le pont
SECURITE ENVAHISSEMENT
- Centrale Marinelec pour surveillance niveau d’eau
- Réseau assèchement sur pompe attelée à un moteur
- Motopompe diesel secours assèchement reliable au collecteur
SECURITE AVARIE
- Drome de sécurité réglementaire
- Largage pneumatique des radeaux depuis la timonerie
OPTIONS
Relatives à la motorisation
Upgrade Propulsion Hybride Parallèle
(adaptée aux traversées de zones protégées à la vitesse de carène)
- Type de propulsion
- Inboard Hybride
- Propulsion diesel
- 2* Cummins QSL9 450 Ch @2100 rpm
- Capacité gasoil
- 2* 1000 L
- Propulsion électrique
- 2* 80 kW
- Puissance batteries
- 125 kWh
- Type de batteries
- Lithium Fer Phosphate
- Chargeur de batteries
- 380V / 30A
- Vitesse Max. @diesel
- approx 20 nœuds
- Vitesse Max. @électrique
- approx 8.5 nœuds
- Vitesse de croisière @électrique
- approx 6 nœuds
- Autonomie @vitesse de croisière électrique
- 3h à 6 nœuds
- Système monitoring de la vedette
Variante Propulsion 100% Electrique
(en remplacement de la propulsion diesel)
- Type de propulsion
- Inboard Electrique
- Propulsion électrique
- 2* 80 kW
- Puissances batteries
- 2* 250 kWh
- Type de batteries
- Lithium Fer Phosphate
- Chargeur de batteries
- 380V / 2* 36 A
- Vitesse Max. @électrique
- approx. 8,5 nœuds
- Vitesse de croisière @électrique
- approx. 6 nœuds
- Autonomie @vitesse de croisière électrique
- 9h à 6 nœuds
- Système monitoring de la vedette
Upgrade motorisation diesel
- 2* Volvo D13 500 Ch @1800 rpm + 2* ZF360A
- 2* Nanni N13 500 Ch @1900 rpm + 2* ZF325-1A
- Double gainage moteurs 2* Cummins QSL9 450 Ch
Catalysation moteurs
- Système de catalysation moteurs SCR (2* Volvo D13 500 Ch @1800 rpm)
(Selective Catalyst System – IMO III / EPA IV compliant)
OPTIONS
Relatives aux "toys" et équipements
- Stabilisateur gyroscopique Seakeeper 9
- Grue Guerra attelée à un moteur M42.20A1 | 3.5 tm + treuil 670 Kg
- Cale froid positif 3.5 m³ | 4kW
- Réservoirs diesel 3100 L et eau douce 1000 L additionnels avec pompes
- Climatisation marine timonerie Frigomar 6.000 BTU | 1.5 kW
- Climatisation marine timonerie et salon Frigomar 15.000 BTU
- Climatisation type terrestre timonerie et salon 15.000 BTU
- Pont Flexiteek 2G sur la plage avant, table et assises
- Débarquement zone avant
- Groupe électrogène Onan 220V | 11 kW
- Groupe électrogène Onan 220V | 17.5 kW
- Groupe électrogène Onan 220V | 27 kW
- Chauffage électrique salon & timonerie 4 kW
- Propulseur d’étrave Quick 10 kW
- Centrale éléctro-hydraulique LS
- Module pilote automatiques Simrad + gyrocompas
- Système 8 caméras – Surveillance machine et aide à la navigation
- 3 écrans 32 pouces avec connectique HDMI
- Pompe / macérateur évacuation eaux noires Gianneschi 220V | 1 kW
- Frigo & congélateur
- Déssalinisateur Schenker ZEN 100 220V | 100 l/h
- Chauffe eau 50 L
- Pompe atelée avec rouet bronze en remplacement rouet néoprène
- Sondeur Airmar SS60
- Upgrade siège VIP toile tendue
- Toile de remplacement
OPTION
Relatives à la connectivité
- Système monitoring de la vedette sur écran tactile, avec accès à distance 3G
Monitoring envahissements
Monitoring feux de navigation
Monitoring pack batteries service, secours, démarrage, guindeau/prop. étrave
Monitoring réservoirs (gasoil, eau douce, eau noire)
Monitoring moteur thermique
Monitoring GPS
Monitoring pack batteries lithium
Monitoring moteurs électriques
Monitoring isolation entre circuits électriques et coque
Monitoring accélération verticale structure
Connectivité 3G et interface armateur à distance


