19 m Yacht Support Vessel
Cette vedette en Aluminium de 19.40 m de long et 4.70 m de large est destinée au Transport de Passagers. Elle est conçue pour une homologation aux normes françaises en maritime comme en fluvial.
Sa capacité totale est de 97 passagers (dont 84 en 3ème catégorie), en plus du pilote et trois hommes d’équipage.
Son plan de pont rationnel et efficace permet une bonne circulation des passagers, un soin particulier a été apporté à la disposition et aux conforts des assises.
Des solutions d’amélioration de l’expérience passagers (propulsion 100% Electrique, Hybridation Parallèle, insonorisation) et de simplification de maintenance (panneaux de ponts sur vérins au dessus des moteurs, établi dans le compartiment avant, pompes de vidanges à poste, etc.) sont proposées par le chantier.
Programme du Navire
Monocoque semi-planant de type "Yacht Support Vessel"
Spécifications
- ConstructeurODC Marine
- Architecte NavalMer et Design
- Matériaux de constructionAluminium Marine
Homologation
Navire de plaisance homologation CE - Catégorie A - Semi-hauturier
CARACTERISTIQUES PRINCIPALES
- Exploitation2 000h/an
- Longueur hors-tout19,40 m
- Longueur coque18,00 m
- Longueur flottaison16,90 m
- Bau coque4,70 m
- Creux1,90 m
- Tirant d’eau en charge1,25 m
- Capacité équipage & invités16
- Propulsion2 x 450 Ch (diesel)
- Capacité gasoil2 x 1 100 L
- Capacité eau douce150 L
- Capacité eau noire150 L
- Capacité "toys" et équipements10 tonnes
AMÉNAGEMENT ET ÉQUIPEMENTS DE CONFORT
- Traitement acoustique et vibratoire
- Vaigrages et finitions nid d’abeille aluminium plafond timonerie et cabine
- Vitres et fenêtres en timonerie et cabine
- Système audio
- Siège pilote standard
- Eclairage LED intégral
- Poste de repos pour 4 personnes
- 2 toilettes / douches
- Cuisine & carré équipage
TRAITEMENT DE SURFACE
- Œuvres mortes : cycle peinture phase aqueuse à faible impact environnemental - Finitions en enduit époxy
- Œuvres vives : cycle antifouling
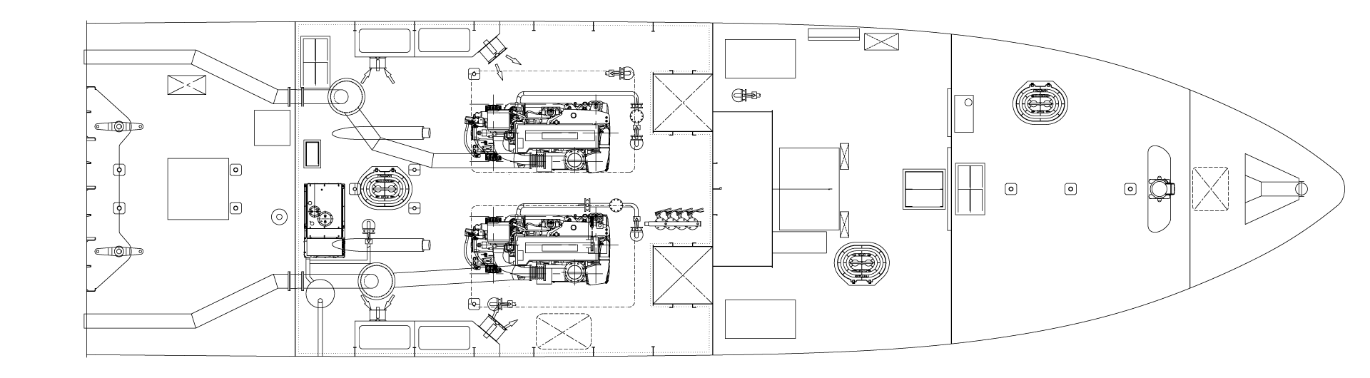
FONCTION PROPULSION
- Motorisation2 × Cummins QSL9 - 450 Ch @ 2 100 rpm
- Inverseur2 × ZF 325-A
- Ligne d’arbre, tourteau et héliceZF, 4 pales, classe S
- Ventilation machineInjection 2 × 4 000 m³/h -Extraction 2 × 2 400 m³/h
FONCTION DIRECTION
- Vérin et pompe hydraulique LS
- Capteur et indicateur angle de barre
- By-pass hydraulique et barre secours
"TOYS" ET EQUIPEMENTS
- Capacité de chargement10 tonnes
SOURCES D’ÉNERGIE ÉLECTRIQUE ET DISTRIBUTION
- 2 × packs batteries démarrage Optima24 V, 75 Ah
- 1 × pack batteries service24 V, 200 Ah
- 1 × chargeur de batteries24 V, 30 Ah
ÉQUIPEMENTS DE NAVIGATION
- Centrale NSS9 evo3 GPS Simrad + antenne GPS externe
- VHF RS20S Simrad
- Compas Lalizas
ACCOSTAGE ET MOUILLAGE
- Guindeau électrique2,3 kW
- Mouillage réglementaire - Ancre à haute pouvoir de tenue Rocna
SÉCURITÉ INCENDIE
- Centrale détection incendie
- Isolation salle machine vaigrage laine de roche
- Système extinction Incendie
SÉCURITÉ ENVAHISSEMENT
- Centrale surveillance niveaux d’eau
- Assèchement par pompes électriques
SÉCURITÉ AVARIE
- Drome de sécurité - radeaux Lalizas, bouées, brassières, lampes de gilets
SÉCURITÉ SIGNALEMENT
- Eclairages réglementaires
Options
Relatives à la motorisation
Upgrade Propulsion - Hybridation Parallèle - Version Standard (1 h 30 à 6 nœuds)
- Type de propulsionInbord Hybride
- Propulsion diesel2 × Cummins QSL9 - 450 Ch @ 2 100 rpm
- Capacité gasoil2 x 1 100 L
- Moteurs électriques 2 × 80 kW
- Puissance batteries66 kWh
- Type de batteriesLithium Fer Phosphate
- Chargeur de batteries400 V, 22 A
- Vitesse max. dieselapprox. 20 noeuds
- Vitesse max. électriqueapprox. 8.5 noeuds
- Vitesse de croisière électriqueapprox. 6 noeuds
- Autonomie à la vitesse de croisière électrique1 h 30 à 6 noeuds
- Système monitoring de la vedette
Upgrade Propulsion - Hybridation Parallèle - Autonomie Etendue (3 h à 6 nœuds)
- Type de propulsionInbord Hybride
- Propulsion diesel2 × Cummins QSL9 - 450 Ch @ 2 100 rpm
- Capacité gasoil2 x 1 100 L
- Moteurs électriques 2 × 80 kW
- Puissance batteries132 kWh
- Type de batteriesLithium Fer Phosphate
- Chargeur de batteries400 V, 39 A
- Vitesse max. dieselapprox. 20 noeuds
- Vitesse max. électriqueapprox. 8.5 noeuds
- Vitesse de croisière électriqueapprox. 6 noeuds
- Autonomie à la vitesse de croisière électrique3 h à 6 noeuds
- Système monitoring de la vedette
Variante Propulsion 100% électrique (9 h à 6 nœuds)
- Type de propulsionInbord Electrique
- Moteurs électriques 2 × 80 kW
- Puissance batteries2 × 221 kWh
- Type de batteriesLithium Fer Phosphate
- Chargeur de batteries400 V, 2 × 73 A
- Vitesse de croisièreapprox. 6 noeuds
- Autonomie à la vitesse de croisière électrique9 h à 6 noeuds
- Système monitoring de la vedette
Upgrade motorisation diesel
- 2 × Volvo D13 - 500 Ch @ 1 800 rpm + 2 × ZF 400 A
- Système de Catalysation SCR - 2 × Volvo D13 - 500 Ch @ 1 800 rpm
- Refroidissement Keel Cooling moteurs - Duramax Marine - 2 × Volvo D13 - 500 Ch
Upgrade motorisation diesel
- Double gainage moteurs 2 × Cummins QSL9 - 450 Ch @ 2 100 rpm
- Refroidissement Keel Cooling moteurs - Duramax Marine - 2 × Cummins QSL9 - 450 Ch
- Système de Catalysation SCR - 2 × Cummins QSL9 - 450 Ch @ 2 100 rpm
OPTIONS
Relatives aux "toys"
- Grue Guerra attelée à un moteur M42.20A1, 3.5 tm + treuil 670 kg
- Cale froid positif 3.5 m³, 4 kW
- Réservoirs diesel 3 000 L et eau douce 500 L supplémentaires avec pompes
- Déssalinisateur Schenker ZEN 100 220 V, 100 L/h
- Compresseur de plongée Bauer junior II-W 100 L/min
- 2 × sèche-linges Panasonic 9 kg NH-9095D
- 2 × lave-linges Panasonic 10 kg XQG100-L165
- Cuisinière intégrée avec feux de cuisson au gaz, hotte aspirante, four 61 L et four à micro-onde Westinghouse JJZT-WL05
- Barbecue au gaz WalPole upgraded
- Réfrigerateur Hoshizaki 600L HR-78MA-P
- 2 × congélateurs Hoshizaki 600L HF-78MA-P
- Machine à glaçons Hoshizaki IM-30CA
- Karcher HD 6/15M 220
OPTIONS
Relatives aux équipements
- Stabilisateur gyroscopique Seakeeper 9
- Stabilisation gyroscopique Quick MC2 30K, 6 kW
- Climatisation timonerie Blue-Airco 10 000 BTU, 820 W
- Climatisation marine timonerie et salon 15 000 BTU
- Climatisation type terrestre timonerie et salon 15 000 BTU
- Pont Flexiteek 2G sur la plage avant, table et assises
- Débarquement zone avant
- Groupe électrogène Onan 220 V, 11 kW @ 1 500 rpm
- Groupe électrogène Onan 220 V, 17,5 kW @ 1 500 rpm
- Groupe électrogène Onan 220 V, 27 kW @ 1 500 rpm
- Chauffage électrique salon et timonerie 4 kW
- Propulseur d’étrave 10 kW
- Centrale électro-hydraulique LS
- Écran Simrad NSS12 Evo3s additionnel avec module d’expansion réseau
- Simrad NSS12 Evo3s en replacement du NSS9 Evo3s
- 7 × projecteurs sous-marine Titanium Blue 20 V – 40 W
- Convertisseur 400 V DC vers 220 V AC, 5 kW
- Module pilote automatiques Simrad + gyrocompas
- Panneaux solaires 1,4 kW
- Système 8 caméras
- Pompe / macérateur évacuation eaux noires Gianneschi 220 V, 1 kW
- Pack outils maintenance
- Complément pack outils maintenance propulsion électrique
- Centrale Meteo Airmar 110WX
- AIS NAIS-500 avec antennes GPS et VHF
- Pack amarrage - 6 × défenses Polyform F8 et 4 × amarres polyamide 22 mm de 18 m
- Pompe attelée avec rouet bronze en remplacement rouet néoprène
- Sondeur Airmar SS60
- Jeu d'anodes de rechange
- 4 × anodes pendantes
OPTIONS
Relatives à la connectivité
Système monitoring de la vedette sur écran tactile
- Monitoring envahissements
- Monitoring feux de navigation
- Monitoring pack batteries service, secours, démarrage, guindeau/prop. étrave
- Monitoring réservoirs (gasoil, eau douce, eau noire)
- Monitoring moteur thermique
- Monitoring GPS
- Monitoring pack batteries lithium (version hybride et électrique uniquement)
- Monitoring moteurs électriques (version hybride et électrique uniquement)
- Monitoring isolation entre circuits électriques et coque
- Monitoring accélération verticale structure
- Connectivité Wi-Fi
