21 m Yacht Support Vessel
Programme du Navire
Monocoque semi-planant de type "Yacht Support Vessel"
Spécifications
- ConstructeurODC Marine
- Architecte NavalMer et Design
- Matériaux de constructionAluminium Marine
Homologation
Navire de plaisance homologation CE - Catégorie A - Semi-hauturier
CARACTERISTIQUES PRINCIPALES
- Exploitation2 000h/an
- Longueur hors-tout21,40 m
- Longueur coque20,00 m
- Longueur flottaison19,15 m
- Bau coque5,80 m
- Creux2,15 m
- Tirant d’eau en charge1,50 m
- Capacité équipage & invités16
- Propulsion2 × 700 Ch (diesel)
- Capacité gasoil2 x 1 750 L
- Capacité eau douce150 L
- Capacité eau noire150 L
- Capacité "toys" et équipements15 tonnes
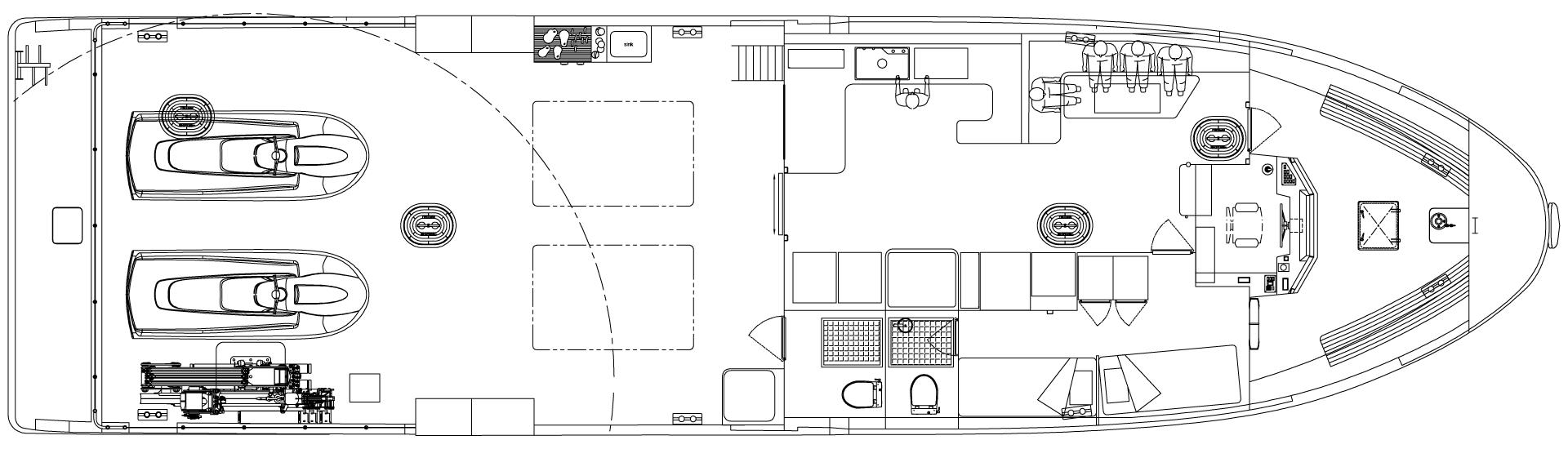
AMÉNAGEMENT ET ÉQUIPEMENTS DE CONFORT
- Traitement acoustique et vibratoire
- Vaigrages et finitions nid d’abeille aluminium plafond timonerie et cabine
- Vitres et fenêtres en timonerie et cabine
- Système audio
- Siège pilote standard
- Eclairage LED intégral
- Poste de repos pour 4 personnes
- 2 toilettes / douches
- Cuisine & carré équipage
TRAITEMENT DE SURFACE
- Œuvres mortes : cycle peinture phase aqueuse à faible impact environnemental - Finitions en enduit époxy
- Œuvres vives : cycle antifouling
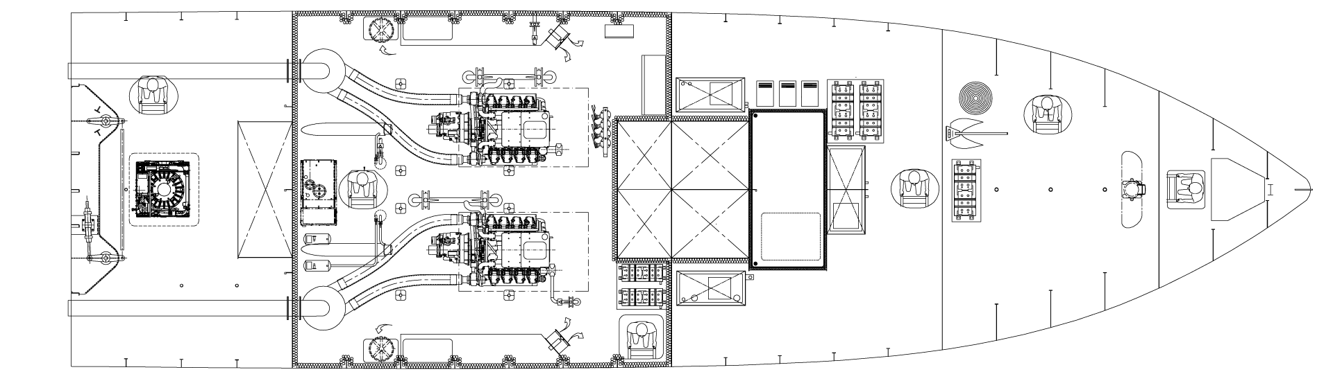
FONCTION PROPULSION
- Motorisation2 × Scania DI16 072M - 700 Ch @ 2 100 rpm
- Inverseur2 × ZF 510-1 A
- Ligne d’arbre, tourteau et héliceZF, 4 pales, classe S
- Ventilation machineInjection 2 × 8 000 m³/h -Extraction 2 × 4 000 m³/h
FONCTION DIRECTION
- Vérin et pompe hydraulique LS
- Capteur et indicateur angle de barre
- By-pass hydraulique et barre secours
"TOYS" ET EQUIPEMENTS
- Capacité de chargement15 tonnes
SOURCES D’ÉNERGIE ÉLECTRIQUE ET DISTRIBUTION
- 2 × packs batteries démarrage Optima24 V, 75 Ah
- 1 × pack batteries service24 V, 200 Ah
- 1 × chargeur de batteries24 V, 30 Ah
ÉQUIPEMENTS DE NAVIGATION
- Centrale NSS9 evo3 GPS Simrad + antenne GPS externe
- VHF RS20S Simrad
- Compas Lalizas
ACCOSTAGE ET MOUILLAGE
- Guindeau électrique3 kW
- Mouillage réglementaire - Ancre à haute pouvoir de tenue Rocna
SÉCURITÉ INCENDIE
- Centrale détection incendie
- Isolation salle machine vaigrage laine de roche
- Système extinction Incendie
SÉCURITÉ ENVAHISSEMENT
- Centrale surveillance niveaux d’eau
- Assèchement par pompes électriques
SÉCURITÉ AVARIE
- Drome de sécurité - radeaux Lalizas, bouées, brassières, lampes de gilets
SÉCURITÉ SIGNALEMENT
- Eclairages réglementaires
Options
Relatives à la motorisation
Upgrade Propulsion - Hybridation Parallèle - Version Standard (1 h 30 à 6 nœuds)
- Type de propulsionInbord Hybride
- Propulsion diesel2 × Scania DI16 072M - 700 Ch @ 2 100 rpm
- Capacité gasoil2 x 1 750 L
- Moteurs électriques 2 × 80 kW
- Puissance batteries88 kWh
- Type de batteriesLithium Fer Phosphate
- Chargeur de batteries400 V, 32 A
- Vitesse max. dieselapprox. 20 noeuds
- Vitesse max. électriqueapprox. 8.5 noeuds
- Vitesse de croisière électriqueapprox. 6 noeuds
- Autonomie à la vitesse de croisière électrique1 h 30 à 6 noeuds
- Système monitoring de la vedette
Upgrade Propulsion - Hybridation Parallèle - Autonomie Etendue (3 h à 6 nœuds)
- Type de propulsionInbord Hybride
- Propulsion diesel2 × Scania DI16 072M - 700 Ch @ 2 100 rpm
- Capacité gasoil2 x 1 750 L
- Moteurs électriques 2 × 80 kW
- Puissance batteries177 kWh
- Type de batteriesLithium Fer Phosphate
- Chargeur de batteries400 V, 54 A
- Vitesse max. dieselapprox. 20 noeuds
- Vitesse max. électriqueapprox. 8.5 noeuds
- Vitesse de croisière électriqueapprox. 6 noeuds
- Autonomie à la vitesse de croisière électrique3 h à 6 noeuds
- Système monitoring de la vedette
Variante Propulsion 100% électrique (9 h à 6 nœuds)
- Type de propulsionInbord Electrique
- Moteurs électriques 2 × 80 kW
- Puissance batteries2 × 350 kWh
- Type de batteriesLithium Fer Phosphate
- Chargeur de batteries400 V, 2 × 73 A
- Vitesse de croisièreapprox. 6 noeuds
- Autonomie à la vitesse de croisière électrique9 h à 6 noeuds
- Système monitoring de la vedette
Upgrade motorisation diesel
- 2 × Caterpillar C18 - 814 Ch @ 2 100 rpm + 2 × ZF 66 5A
Upgrade motorisation diesel
- 2 × Volvo D16 - 750 Ch @ 1 900 rpm + 2 × ZF 665 A
- Système de Catalysation SCR - 2 × Volvo D16 - 750 Ch @ 1 900 rpm
Upgrade motorisation diesel
- 2 × Baudouin 6M26.3 - 750 Ch @ 2 100 rpm + ZF 665 A
Downgrade motorisation
- 2 × Volvo D13 - 600 Ch @ 1 900 rpm + 2 × ZF 400 A
- Système de Catalysation SCR - 2 × Volvo D13 - 600 Ch @ 1 900 rpm
- Refroidissement Keel Cooling moteurs - Duramax Marine - 2 × Volvo D13 – 600 Ch
Downgrade motorisation
- 2 × Volvo D13 - 500 Ch @ 1 800 rpm + 2 × ZF 400 A
- Système de Catalysation SCR - 2 × Volvo D13 - 500 Ch @ 1 800 rpm
- Refroidissement Keel Cooling moteurs - Duramax Marine - 2 × Volvo D13 – 500 Ch
Downgrade motorisation
- 2 × Cummins QSL9 - 450 Ch @ 2 100 rpm + 2 × ZF 325 A
- Double gainage moteurs - 2 × Cummins QSL9 - 450 Ch
- Refroidissement Keel Cooling moteurs - Duramax Marine - 2 × Cummins QSL9 - 450 Ch
- Système de Catalysation SCR - 2 × Cummins QSL9 - 450 Ch @ 2 100 rpm
OPTIONS
Relatives aux "toys"
- Grue Guerra attelée à un moteur M80.20A1, 7,5 tm + treuil 825 kg
- Grue Guerra attelée à un moteur M42.20A1 | 3.5 tm + treuil 670 kg
- Cale froid positif 3.5 m³, 4 kW
- Réservoirs diesel 5 000 L et eau douce 800 L supplémentaires avec pompes
- Déssalinisateur Schenker ZEN 100 220 V, 100 L/h
- Compresseur de plongée Bauer junior II-W 100 L/min
- 2 × sèche-linges Panasonic 9 kg NH-9095D
- 2 × lave-linges Panasonic 10 kg XQG100-L165
- Cuisinière intégrée avec feux de cuisson au gaz, hotte aspirante, four 61 L et four à micro-onde Westinghouse JJZT-WL05
- Barbecue au gaz WalPole
- Réfrigerateur Hoshizaki 600L HR-78MA-P
- 2 × congélateurs Hoshizaki 600L HF-78MA-P
- Machine à glaçons Hoshizaki IM-30CA
- Karcher HD 6/15M 220
OPTIONS
Relatives aux équipements
- Stabilisateur gyroscopique Seakeeper 9
- Stabilisateur gyroscopique Quick MC2 30, 6 kW
- Climatisation timonerie Blue-Airco 10 000 BTU, 820 W
- Climatisation marine timonerie et salon 15 000 BTU
- Climatisation type terrestre timonerie et salon 15 000 BTU
- Pont Flexiteek 2G sur la plage avant, table et assises
- Débarquement zone avant
- Groupe électrogène Onan 220 V, 11 kW @ 1 500 rpm
- Groupe électrogène Onan 220 V, 17,5 kW @ 1 500 rpm
- Groupe électrogène Onan 220 V, 27 kW @ 1 500 rpm
- Chauffage électrique salon et timonerie 4 kW
- Propulseur d’étrave 12 kW
- Centrale électro-hydraulique LS
- Convertisseur 400 V DC vers 220 V AC, 5 kW
- Module pilote automatique Simrad + gyrocompas
- Panneaux solaires 1,4 kW
- Système 8 caméras - Surveillance machine et aide à la navigation
- Pompe / macérateur évacuation eaux noires Gianneschi 220 V, 1 kW
- Pack outils maintenance
- Complément pack outils maintenance propulsion électrique
- Centrale Meteo Airmar 110WX
- AIS NAIS-500 avec antennes GPS et VHF
- Pack amarrage - 6 × défenses Polyform F10 et 4 × amarres polyamide 25mm de 20m
- Pompe attelée avec rouet bronze en remplacement rouet néoprène
- Sondeur Airmar SS60
- Jeu d'anodes de rechange
- 4 × anodes pendantes
OPTIONS
Relatives à la connectivité
Système monitoring de la vedette sur écran tactile
- Monitoring envahissements
- Monitoring feux de navigation
- Monitoring pack batteries service, secours, démarrage, guindeau/prop. étrave
- Monitoring réservoirs (gasoil, eau douce, eau noire)
- Monitoring moteur thermique
- Monitoring GPS
- Monitoring pack batteries lithium (version hybride et électrique uniquement)
- Monitoring moteurs électriques (version hybride et électrique uniquement)
- Monitoring isolation entre circuits électriques et coque
- Monitoring accélération verticale structure
- Connectivité Wi-Fi
