Vedette Fret Rapide
19 m - 10 tonnes
Ce navire en Aluminium de 19.40 m de long et 4.80m de large est destinée au transport de marchandises.
Il est conçue pour une homologation aux normes françaises en maritime comme en fluvial.
Sa capacité fret ponté est de 10 tonnes.
Programme du Navire
Monocoque semi plannant destiné au transport de marchandises
Spécifications
- ConstructeurODC Marine
- Architecte NavalMer et Design
- Matériaux de constructionAluminium Marine
Homologation
Navire fret division 222 de la règlementation française
- Plans visés Bureau Veritas (FPO Nantes)
- Suivi de construction Bureau Veritas
- Visite au chantier d’un inspecteur des Affaires Maritimes
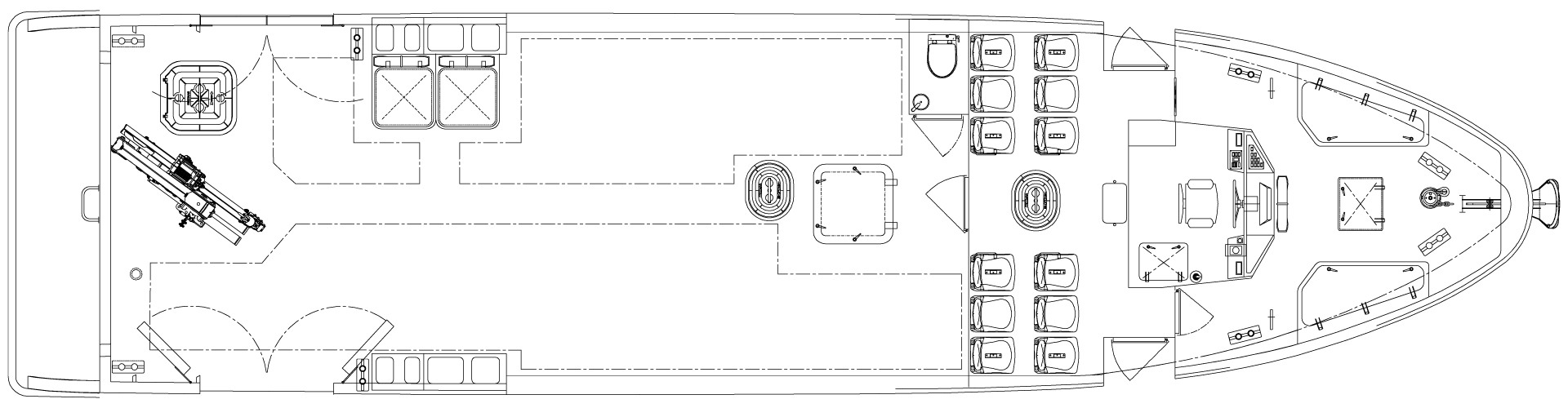
CARACTERISTIQUES PRINCIPALES
- Exploitation2 000h/an
- Longueur hors-tout19,40 m
- Longueur coque18,00 m
- Longueur flottaison16,90 m
- Bau coque4,70 m
- Creux1,90 m
- Tirant d’eau en charge1,25 m
- Capacité passagers 12 en 3ème catégorie
- Capacité fret10 tonnes
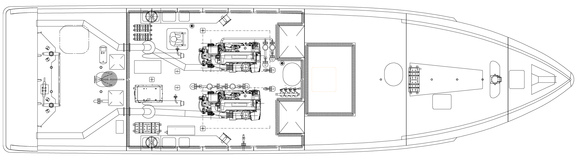
- Propulsion2 × 450 Ch (diesel)
- Capacité gasoil2 × 1 100 L
- Capacité eau douce150 L
- Capacité eau noire150 L
AMÉNAGEMENT ET ÉQUIPEMENTS DE CONFORT
- Traitement acoustique et vibratoire
- Vaigrages et finitions nid d’abeille aluminium plafond salon et timonerie
- Vitres et fenêtres en timonerie et salon passagers
- Système audio
- 12 assises passagers confort en aluminium
- Siège pilote standard
- 1 toilette
- Eclairage LED intégral
TRAITEMENT DE SURFACE
- Œuvres mortes : cycle peinture phase aqueuse à faible impact environnemental - Finitions en enduit époxy
- Œuvres vives : cycle antifouling
FONCTION PROPULSION
- Motorisation2 × Cummins QSL9 - 450 Ch @ 2 100 rpm
- Inverseur2 × ZF 325-A
- Ligne d’arbre, tourteau et héliceZF, 4 pales, classe S
- Ventilation machineInjection 2 × 4 000 m³/h -Extraction 2 × 2 400 m³/h
FONCTION DIRECTION
- Vérin et pompe hydraulique LS
- Capteur et indicateur angle de barre
- By-pass hydraulique et barre secours
FONCTION FRET
- Fret ponté10 tonnes
SOURCES D’ÉNERGIE ÉLECTRIQUE ET DISTRIBUTION
- 2 × packs batteries démarrage Optima24 V, 75 Ah
- 1 × pack batteries guindeau Optima24 V, 75 Ah
- 1 × pack batteries service24 V, 200 Ah
- 1 × pack batteries secours24 V, 150 Ah
- 1 × pack batteries secours radio12 V, 110 Ah
- 2 × chargeurs de batteries24 V, 30 Ah
ÉQUIPEMENTS DE NAVIGATION
- Centrale Simrad NSS9 evo3 GPS + antenne GPS externe
- Radar Simrad Halo 20
- 2 × VHF Simrad RS20S
- 1 × VHF portable GMDSS
- Transpondeur Ocean Signal SART
- Compas Lalizas
- Balise Ocean Signal EPIRB
ACCOSTAGE ET MOUILLAGE
- Guindeau électrique2,3 kW
- Mouillage réglementaire - Ancre à haute pouvoir de tenue Rocna
SÉCURITÉ INCENDIE
- Centrale Marinelec détection incendie
- Isolation salle machine vaigrage laine de roche
- Système d’extinction Novec
- Pompe attelée incendie sur un moteur + lance + diffuseur
- Motopompe diesel secours incendie sur le pont
SÉCURITÉ ENVAHISSEMENT
- Centrale Marinelec pour surveillance niveau d’eau
- Réseau assèchement sur pompe attelée à un moteur
- Motopompe diesel secours assèchement reliable au collecteur
SÉCURITÉ AVARIE
- Drome de sécurité réglementaire (Radeaux Lalizas, bouées, brassières, feux à retournement, lampes de gilets)
- Libération à distance du radeau de sauvetage - Activée depuis la timonerie
SÉCURITÉ SIGNALEMENT
- Centrale Marinelec supervision des feux de navigation
- Eclairages réglementaires
Options
Relatives au fret
- Grue Guerra attelée à un moteur M42.20A1, 3.5 tm + treuil 670 kg
- Cale froid positif 3.5 m³, 4 kW
- Transpalette électrique Xiling CBD15W-LIX 1.5 T
Options
Relatives à la motorisation
Upgrade Propulsion - Hybridation Parallèle - Version Standard (1 h 30 à 6 nœuds)
- Type de propulsionInbord Hybride
- Propulsion diesel2 × Cummins QSL9 - 450 Ch @ 2 100 rpm
- Capacité gasoil2 x 1 100 L
- Moteurs électriques 2 × 80 kW
- Puissance batteries66 kWh
- Type de batteriesLithium Fer Phosphate
- Chargeur de batteries400 V, 22 A
- Vitesse max. dieselapprox. 20 noeuds
- Vitesse max. électriqueapprox. 8.5 noeuds
- Vitesse de croisière électriqueapprox. 6 noeuds
- Autonomie à la vitesse de croisière électrique1 h 30 à 6 noeuds
- Système monitoring de la vedette
Upgrade Propulsion - Hybridation Parallèle - Autonomie Etendue (3 h à 6 nœuds)
- Type de propulsionInbord Hybride
- Propulsion diesel2 × Cummins QSL9 - 450 Ch @ 2 100 rpm
- Capacité gasoil2 x 1 100 L
- Moteurs électriques 2 × 80 kW
- Puissance batteries132 kWh
- Type de batteriesLithium Fer Phosphate
- Chargeur de batteries400 V, 39 A
- Vitesse max. dieselapprox. 20 noeuds
- Vitesse max. électriqueapprox. 8.5 noeuds
- Vitesse de croisière électriqueapprox. 6 noeuds
- Autonomie à la vitesse de croisière électrique3 h à 6 noeuds
- Système monitoring de la vedette
Variante Propulsion 100% électrique (9 h à 6 nœuds)
- Type de propulsionInbord Electrique
- Moteurs électriques 2 × 80 kW
- Puissance batteries2 × 221 kWh
- Type de batteriesLithium Fer Phosphate
- Chargeur de batteries400 V, 2 × 73 A
- Vitesse de croisièreapprox. 6 noeuds
- Autonomie à la vitesse de croisière électrique9 h à 6 noeuds
- Système monitoring de la vedette
Upgrade motorisation diesel
- Double gainage moteurs - 2 × Cummins QSL9 - 450 Ch @ 2 100 rpm
- Refroidissement Keel Cooling moteurs - Duramax Marine - 2 × Cummins QSL9 - 450 Ch
- Système de Catalysation SCR - 2 × Cummins QSL9 - 450 Ch @ 2 100 rpm
Upgrade motorisation diesel
- 2 × Volvo D13 - 500 Ch @ 1 800 rpm + 2 × ZF 400 A
- Système de Catalysation SCR - 2 × Volvo D13 - 500 Ch @ 1 800 rpm
- Refroidissement Keel Cooling moteurs - Duramax Marine - 2 × Volvo D13 - 500 Ch
OPTIONS
Relatives aux équipements
- Stabilisateur gyroscopique Seakeeper 9
- Climatisation timonerie Blue-Airco 10 000 BTU, 820 W
- Climatisation timonerie et salon passagers 15 000 BTU
- Pont Flexiteek 2G timonerie + salon passagers
- Groupe électrogène Onan 220 V 11 kW @ 1 500 rpm
- Chauffage électrique 4 kW salon passagers et la timonerie
- Propulseur d’étrave 10 kW
- Centrale électro-hydraulique LS
- Code SCV
- Convertisseur 400 V DC vers 220 V AC, 5 kW
- Module pilote automatiques Simrad + gyrocompas
- Système 8 caméras
- Pompe / macérateur évacuation eaux noires Gianneschi 220 V, 1 kW
- Pack outils maintenance
- Complément pack outils maintenance propulsion électrique
- Centrale Meteo Airmar 110WX
- AIS NAIS-500 avec antennes GPS et VHF
- Pompe attelée avec rouet bronze en remplacement rouet néoprène
- Sondeur Airmar SS60
- Jeu d'anodes de rechange
- 4 × anodes pendantes
- Upgrade siège VIP toile tendue
- Toile tendue de remplacement
OPTIONS
Relatives à la connectivité
Système monitoring de la vedette sur écran tactile
- Monitoring envahissements
- Monitoring feux de navigation
- Monitoring pack batteries service, secours, démarrage, guindeau/prop. étrave
- Monitoring réservoirs (gasoil, eau douce, eau noire)
- Monitoring moteur thermique
- Monitoring GPS
- Monitoring pack batteries lithium (version hybride et électrique uniquement)
- Monitoring moteurs électriques (version hybride et électrique uniquement)
- Monitoring isolation entre circuits électriques et coque
- Monitoring accélération verticale structure
- Connectivité Wi-Fi





















