Passenger - Cargo Vessel
21 m - 84 pax / 6 tons
This Aluminum vessel, 20 m long and 5.80 m wide, is designed for Passenger and Cargo Transport. It is built to meet French certification standards for both maritime and inland waterways operations.
Its total capacity is 83 passengers, in addition to 6 tonnes of cargo, plus the pilot and three crew members.
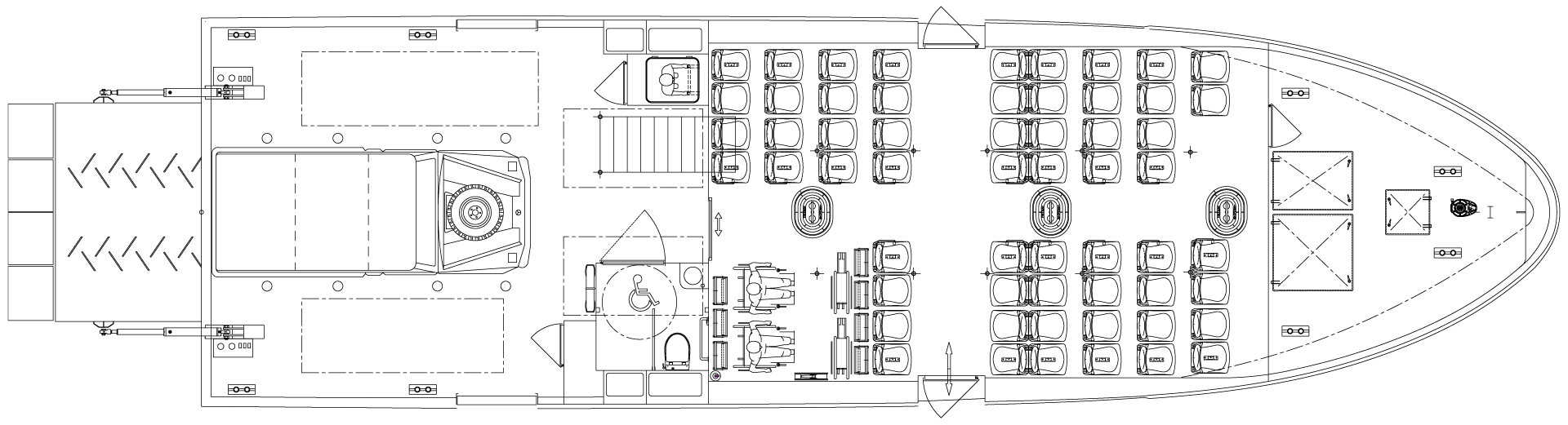
Its rational and efficient deck layout ensures smooth passenger circulation, with particular attention paid to the arrangement and comfort of seating.
Solutions to enhance the passenger experience (such as 100% Electric propulsion, Parallel Hybridization, soundproofing) and to simplify maintenance (deck hatches on actuators above the engines, a workbench in the forward compartment, fixed bilge pumps, etc.) are offered by the shipyard.
TYPE OF VESSEL
Semi-Planing Monohull Designed for Passenger and Cargo Transport
SPECIFICATIONS
- BuilderODC Marine
- Naval ArchitectMer et Design
- Construction MaterialMarine-grade Aluminium
APPROVAL
Passenger and Cargo Monohull Compliant with French Standards
- Design Drawings Approved by Bureau Veritas
- Construction Survey Conducted by Bureau Veritas
- Shipyard Visit by a Marine Affairs Inspector is Included in This Offer
MAIN CHARACTERISTICS
- Rating2 000 h/year
- Hull Length20.00 m
- Waterline Length19.15 m
- Beam5.80 m
- Moulded Depth2.15 m
- Loaded Draft1.50 m
- Passenger Capacity84 in 3rd category
- Cargo Capacity6 tons
- Propulsion2 × 700 hp
- Fuel Capacity2 x 1 600 L
- Fresh Water Capacity170 L
- Black Water Capacity100 L
LAYOUT AND COMFORT EQUIPMENT
- Noise and Vibration Reduction System
- Aluminium Honeycomb Ceiling Panels in Wheelhouse and Passenger Saloon
- Glasses and Windows in Wheelhouse and Passenger Saloon
- Audio System
- Fireproof Aluminium Passenger Seats
- Standard Pilot Seat
- One Disabled-Access Toilet
- LED Lighting
SURFACE TREATMENT
- Topsides: Waterborne Paint System with Low Environmental Impact; Epoxy Filler Finish
- Underside: Anti-Fouling Paint
PROPULSION SYSTEM
- Engines2 × Scania DI16 072M 700 hp @ 2,100 rpm
- Gearboxes2 × ZF 510-1 A
- Shafts and Propellers2 × ZF, 4 blades, S-class
- Engine VentilationInput 2 × 8,000 m³/h - Output 2 × 4,000 m³/h
- Engine Deck Hatches on Jacks Above Engines
STEERING SYSTEM
- LS Pump and Ram
- Helm Angle Sensor and Indicator
- Hydraulic Bypass and Manual Emergency Steering System
CARGO
- Aft Freight Area1 tons on foredeck, 5 tons on deck
- Front Freight Area1 ton
- Reinforced Freight Area
- Aluminium Loading Ramp on 220 V Cables Electric Winchs
ENERGY SOURCES
- 1 × Onan Genset220 V, 11 kW @ 1,500 rpm
- 2 × Optima Engine Battery Pack24 V, 75 Ah
- 1 × Optima Windlass Battery Pack24 V, 75 Ah
- 1 × Service Battery Pack24 V, 200 Ah
- 1 × Safety Battery Pack24 V, 150 Ah
- 1 × Radio Safety Battery Pack12 V, 110 Ah
- 2 × Battery Chargers24 V, 30 Ah
<
- Simrad NSS9 evo3 GPS System with GPS Antenna
- Simrad Halo 20 Radar
- 2 × RS20S Simrad VHF Radios
- 1 × GMDSS Portable VHF
- Ocean Signal SART Transponder
- Lalizas Magnetic Compass
- Ocean Signal EPIRB Tag
ANCHORING SYSTEM
- Electric Windlass 2,3 kW
- High-Performance Rocna Mooring Anchor
FIRE-FIGHTING SYSTEM
- Marinelec Fire Detection System
- Rockwool Fire Insulation in Engine Room
- Novec Extinguishing System
- Fire-Fighting Pump Driven by One Engine + Fire Hose
- Additional Backup Diesel Pump
- MED-Approved Fire-Fighting Equipment
BILGE SYSTEM
- Marinelec Water Detection System
- Bilge Pump Driven by One Engine + Pipe Network
- Additional Backup Diesel Pump Connected to Pipe Network
EVACUATION SYSTEM
- Approved Safety Equipment - Lalizas liferaft, buoys, reversing lights, life jackets with flashing lights
- Remote Liferaft Release - Activated from Wheelhouse
NAVIGATION LIGHTS
- Marinelec Navigation Lights Monitoring System
- Regulatory Navigation Lights
OPTIONS
Related to Propulsion
Propulsion Upgrade - Parallel Hybrid - Standard Version (1.5 h at 6 knots)
- Propulsion typeInbord Hybrid
- Diesel poropulsion2 × Scania DI16 072M 700 hp @ 2,100 rpm
- Fuel Capacity2 x 1 600 L
- Electric motors2 × 80 kW
- Battery power88 kWh
- Battery typeLithium Iron Phosphate
- Battery charger400 V, 32 A
- Diesel max. speedapprox. 20 knots
- Electric max. speedapprox. 8.5 knots
- Electric cruising speedapprox. 6 knots
- Range at electric cruising speed1 h 30 at 6 knots
- Vessel Monitoring System
Propulsion Upgrade - Parallel Hybrid - Long Range (3 h at 6 knots)
- Propulsion typeInbord Hybrid
- Diesel poropulsion2 × Scania DI16 072M 700 hp @ 2,100 rpm
- Fuel Capacity2 x 1 600 L
- Electric motors2 × 80 kW
- Battery power177 kWh
- Battery typeLithium Iron Phosphate
- Battery charger400 V, 54 A
- Diesel max. speedapprox. 20 knots
- Electric max. speedapprox. 8.5 knots
- Electric cruising speedapprox. 6 knots
- Range at electric cruising speed3 h at 6 knots
- Vessel Monitoring System
100% Electric Propulsion (9 h at 6 knots)
- Propulsion typeInbord Electric
- Electric motors2 × 80 kW
- Battery power2 × 313 kWh
- Battery typeLithium Iron Phosphate
- Battery charger400 V, 2 × 90 A
- Cruising speedapprox. 6 knots
- Range at electric cruising speed9 h at 6 knots
- Vessel Monitoring System
Diesel Engine Upgrade
- 2 × Caterpillar C18 - 814 hp @ 1,800 rpm + 2 × ZF 655 A
Diesel Engine Upgrade
- 2 × Volvo D16 - 750 hp @ 1,900 rpm + 2 × ZF 665 A
- SCR Catalyst System - 2 × Volvo D16 - 750 hp @ 1,900 rpm
Diesel Engine Upgrade
- 2 × Baudouin 6M26.3 - 750 hp @ 2,100 rpm + 2 × ZF 665 A
Diesel Engine Downgrade
- 2 × Volvo D13 - 600 hp @ 1,900 rpm + 2 × ZF 400 A
- SCR Catalyst System - 2 × Volvo D13 - 600 hp @ 1,800 rpm
Diesel Engine Downgrade
- 2 × Volvo D13 - 500 hp @ 1,800 rpm + 2 × ZF 400 A
- SCR Catalyst System - 2 × Volvo D13 - 500 hp @ 1,800 rpm
- Engines Keel Cooling - Duramax Marine - 2 × Volvo D13 – 500 hp
Diesel Engine Downgrade
- 2 × Cummins QSL9 - 450 hp @ 2,100 rpm + 2 × ZF 325 A
- Double-Walled Fuel Line - 2 × Cummins QSL9 - 450 hp
- Engines Keel Cooling - Duramax Marine - 2 × Cummins QSL9 - 450 hp
- SCR Catalyst System - 2 × Cummins QSL9 - 450 hp @ 2,100 rpm
OPTIONS
Related to Equipment
- Quick Anti-Roll Gyro Stabilizer MC2 30K, 6 kW
- Wheelhouse Air Conditioning - Blue-Airco 18,000 BTU, 1.3 kW
- Wheelhouse and Passenger Saloon Main Deck Air Conditioning 75,000 BTU, 6 kW
- 12 kW Bow Thruster
- 6 kW Electric Heater for The Passenger Lounge and 2 kW for The Wheelhouse
- SCV Code
- LS Electro-Hydraulic Pump
- Converter 400 VDC to 220 VAC, 5 kW
- Simrad Autopilot + Gyrocompass
- 1.4 kW Solar Panels
- 8-camera Video System - Engine room monitoring and navigation assistance
- 3 × 32 inch Screens with HDMI Input
- Gianneschi Black Water Pump - 220 V, 1 kW
- Maintenance Toolbox
- Toolbox Upgrade for Electric Propulsion
- Airmar 110WX Weather Station
- AIS NAIS-500 with GPS and VHF Antennas
- Mooring Pack - 6 × F10 Fenders and 4 × 20 m, 25 mm Mooring Ropes
- Coupled Pump with Bronze Impeller (Replacing Neoprene Impeller)
- Airmar SS60 Depth Sensor
- Spare Anode Set
- 4 × Hanging Anodes
- VIP Seat Upgrade - Stretched Fabric Version
- Spare Stretched Seat Fabric
OPTIONS
Related to Connectivity
Vessel Monitoring System
- Bilge Monitoring
- Navigation Lights Monitoring
- Service, Windlass, and Bow Thruster Battery Packs Monitoring
- Tanks Monitoring (Diesel, Fresh Water, Black Water)
- Diesel Engine Monitoring
- GPS Monitoring
- Lithium Battery Pack Monitoring
- Electric Motors Monitoring
- Insulation Monitoring Between Electrical Circuits and Hull
- Structural Vertical Acceleration Monitoring
- Wi-Fi Connectivity





















